Sold

3 KENNEDY STREET, Manilla

SOLD for $399,000

5 1 2 986 m2

SPACIOUS, BRIGHT AND A TOTAL DELIGHT...

If space is what you have been looking for then Stop looking. You have found your new home with a bright inviting interior, this immaculate five bedroom home is a must to inspect....

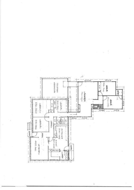
* Five sizable bedrooms with built ins
* Two separate living rooms with the main at the front of the home, the second has access to its very own private paved entertaining area
*Modern kitchen is complimented with its tasteful design and electric appliances, There is enough room for the family to dine in and a second kitchen/ butlers pantry
* The bathroom is centrally located in the home with separate shower and bath
* This home has a family friendly floor plan with polished floors
* Evap cooling throughout the home and for the winter months gas heating
* Stepping outside you will find the enclosed yard positioned on a 986sqm parcel of land, located in close proximity to the Manilla Hospital
* Single lock up garage with power is located under the house with a choice of car accommodation
* 18 solar panels, solar hot water system, 2 x 2000 litre and 2 x 5000 litre rain water tanks.
* Security system
3 Kennedy Street, Manilla is an immaculate, well presented home that will provide your family with space and comfort.

Features

Outdoor entertainment area Fenced Water Tank Solar Hot Water Solar Panels
5 1 2 986 m2

Details

Address 3 KENNEDY STREET, Manilla
Price SOLD for $399,000
Property Type Residential
Property ID 844
Category House
Land Area 986 m2

Tools

Share This Property